An impressive new homes development of 58 bungalows and 15 apartments of striking contemporary design, located in a desirable suburban location close to a wealth of facilities.
The Grange comprises an exceptional collection of 2, 3 & 4 bedroom bungalows (50 detached and 8 semi detached units), and 1 & 2 bedroom apartments (for the over 55's), located in a popular Mansfield suburb off Sandhurst Avenue and Berry Hill Lane within walking distance to excellent facilities.
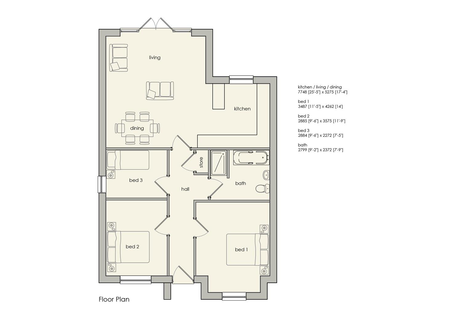
Plot 43 type 4 'Windsor'. A three bedroom detached bungalow, circa 900 sq ft. The accommodation comprises an entrance hall, three bedrooms, bathroom comprising a four piece suite, and a spacious L-shaped open plan living/dining kitchen.
The property comes with a 10-year Premier Guarantee Warranty, gas central heating and UPVC double glazing. In addition, buyers have the opportunity to make the property their own by having the choice of kitchen which includes integrated appliances, and a choice of tiling, carpets and fitted wardrobes to bedroom 1. A more detailed specification list can be found within these particulars.
Externally, plot 43 has front and rear gardens and a large tandem length driveway providing ample off road parking which leads to a single garage.
This is an extremely rare opportunity to acquire a brand new bungalow or apartment in a convenient location. For further information please call the office.
Plot 43 'Windsor' -
Entrance Hall -
Open Plan Living/Dining Kitchen - 7.75m max x 5.28m (25'5" max x 17'4") -
Bedroom 1 - 4.27m x 3.48m (14'0" x 11'5") -
Bedroom 2 - 3.58m x 2.90m (11'9" x 9'6") -
Bedroom 3 - 2.90m x 2.26m (9'6" x 7'5") -
Bathroom - 2.79m x 2.36m (9'2" x 7'9") -
Outside -
Single Garage - 5.99m x 3.10m (19'8" x 10'2") -
Specification - Kitchen - the kitchen is the hub of any modern home, a place where families and friends can gather to cook, eat, entertain, and relax. Our in-house team have created our kitchens to take pride of place. Purposely designed to maximise storage, optimise space and light to enhance functionality and ease of use.
Expertly fitted to suit the orientation of the house, a comprehensive range of bespoke kitchen furniture has been chosen specifically for The Grange giving a contemporary kitchen style and ambience. The hand-built units are positioned to maximise the space. Depending upon the type of property, some types will have a central island which will incorporate units and appliances and allowing for a breakfast bar. Others may have a peninsula which will also allow for a breakfast bar. The units are complemented by sleek stonework surfaces with matching upstands.
Kitchen appliances are specified from top of the range product lines. To include:
. Integrated twin ovens (in certain types).
. Integrated oven and combi microwave oven (in certain types).
. Integrated induction hob.
. Integrated contemporary extractor fan.
. Integrated fridge and freezer (some types maybe 60/40 split).
. Integrated dishwasher.
. Wine chiller.
. Boiling water tap.
. Tiled floor.
Utility Room (where applicable)
. All utility rooms are fitted with units where appropriate with sink and tap.
. In addition, space with water feed and drainage for positioning your washer/dryer.
. Tiled floor.
Entrance Hall, Living Room, and Bedrooms
. A luxurious choice of carpet fitted in the entrance hall, family room and living areas for a sophisticated and warmer tactile feel underfoot.
. An integral door mat to be fitted internally to the front entrance (upon request).
Bathroom & En Suite
. Exquisitely furnished with high quality white porcelain sanitaryware, complemented with stylish modern bathroom ironmongery fittings and heated towel rail.
. Bathroom furniture in a bespoke classic or modern design style and mirrors fitted in the bathroom and en suite (where applicable).
. Porcelain or ceramic tiles to bathroom and en suite floors.
. Porcelain or ceramic tiles to bath/shower and sink wet areas only.
Master Bedroom
. The master bedroom is equipped with a bespoke range of hand-built wardrobes incorporating shelves and chrome hanging rails.
Internal Doors
. Wood veneer internal doors throughout equipped with stylish ironmongery.
. Furnishings in selected rooms featuring a glazed panel door to maximise natural lighting (where applicable).
Decoration & Finishes
. All internal walls and ceilings have a smooth plaster finish and are painted white.
. Quality skirting boards and architraves fitted to interior walls and door surrounds.
Additional Electrical
. Contemporary sockets and switches fitted throughout.
. Shaver sockets fitted to the bathroom and en suite (where applicable).
. Smoke detectors are located and installed in carefully designated areas.
. External lighting is fitted to optimise the use of outdoor areas.
Media & Communications
. Television, data, and telephone points are fitted to selected rooms.
. Television points feature CAT6 cabling which enables 4K Ultra HD streaming.
Security
. A comprehensive approved hardwired security system is provided with PIR sensors to all external lighting.
. A multi-point locking system is an integral part of all external doors.
Central Heating
. Radiators with thermostatic valves powered by a gas combi boiler.
External Finish
. The gardens have been designed to make it an integral part of the home.
. Turfed lawn and a variety of mature trees and shrubs.
. Quality grey paving to paths and patio areas.
. External water tap located to the rear of the property.
. The driveway is surfaced with tarmac and finished with block edging.
Windows & External Doors
. UPVC double glazed windows (white internally & anthracite dark grey externally).
. Composite external doors (white internally & anthracite dark grey externally).
. c/w spy hole and letterbox.
. All fascias to be anthracite dark grey.
Garage
. Remote controlled electric operated door.
. Internal light and power provision.
Warranty
. A 10-year Premier Guarantee Warranty.
Management Company - Each plot will pay an annual service charge for the maintenance of the swale areas, open 'green' spaces, and the private driveways. Please contact us for further details.
Viewing Details - Strictly by appointment with the selling agents. For out of office hours please call Alistair Smith, Director at Richard Watkinson and Partners on 07817-283-521.
Tenure Details - The property is freehold with vacant possession upon completion.
Services Details - All mains services are connected.
Mortgage Advice - Mortgage advice is available through our independent mortgage advisor. Please contact the selling agent for further information. Your home is at risk if you do not keep up with repayments on a mortgage or other loan secured on it.
Fixtures & Fittings - Any fixtures and fittings not mentioned in these details are excluded from the sale price. No services or appliances which may have been included in these details have been tested and therefore cannot be guaranteed to be in good working order.
Read less