The Manor House comprises a fine Grade II listed Georgian country house with three reception rooms, a superb living kitchen, six bedrooms (three en-suite), a range of outbuildings, stables, gardens and paddock, in all extending to 2.454 acre or thereabouts. The house, most sympathetically restored retains original features and is beautifully decorated throughout. Typically for the period there are fine shuttered windows, tall handsome rooms with considerable space versatility. The property is approached by a long driveway from Hollowgate Lane and Church Lane which is a no-through road. Fledborough is a small Nottinghamshire village situated equal distance from Newark and Lincoln (12 miles) with convenient access to the A1 trunk road and the main line London trains from Newark Northgate Station.
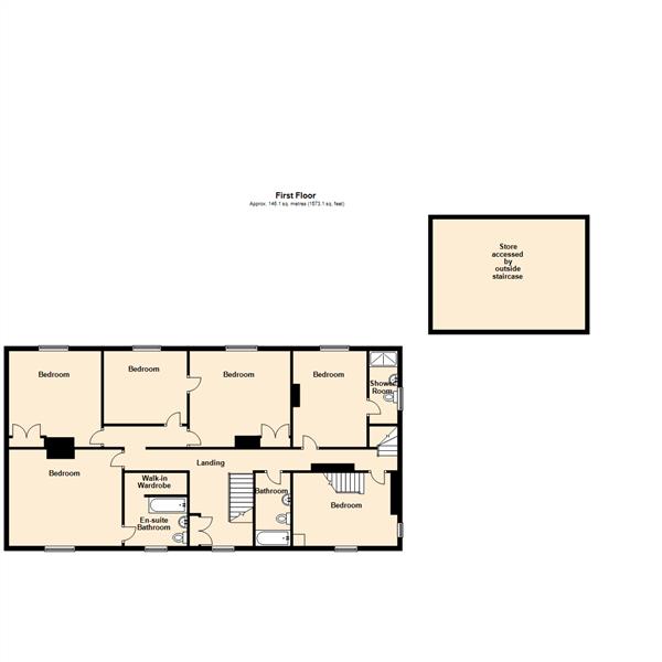
The accommodation briefly provides; a reception hall, study, drawing room, dining room, living kitchen, rear porch, boot room, barrel vaulted cellar and utility/cloak room. The fine original main staircase rises from the reception hall to the first floor with six bedroom, three en-suite and a family bathroom. A corridor leads to the back staircase down to the kitchen.
Externally there is a ground floor former stable and store room and a range a buildings comprising; double carport, four stables and tack room.
The external elevations of the main house are Weathertex rendered over red brick. The main roof is hipped with rosemary tiles. The eaves overhang is distinctive and the property has a Doric porch entrance. Refurbishment has included electrical wiring works and the central heating featuring recently installed Finlock radiators is oil fired.
Fledborough is a small Nottinghamshire village containing only a small scattering of cottages and farmhouses. The nearby village of Dunham on Trent (2.5 miles) has a Church of England primary school and Fledborough is just 3 miles away from Sutton on Trent with a medical centre, Co-operative store, primary school and other village amenities. Within a similar distance of Fledborough is the small Georgian market town of Tuxford with the well regarded Tuxford Academy secondary school.
The living accommodation can be more fully described as follows:-
Ground Floor -
Reception Hall - 4.27m x 2.44m (14' x 8') - Panelled walls, front door and window with shutters, Finlock radiator with latticed screen and fine staircase to the first floor.
Study - 4.83m x 4.27m (15'10 x 14') - Garden aspect, ornamental fireplace surround and wood stove, built in bookcase and fascinating curved doorway.
Drawing Room - 7.01m x 4.22m (23' x 13'10) - Marble fireplace surround, hob grate, shuttered windows and French doors in south elevation. Connecting door to the dining room.
Dining Room - 7.01m x 4.17m (23' x 13'8) - Arched recess on panelled columns, shuttered windows north and east, hob type fireplace with surround and mantel. Finlock radiator.
Kitchen/Sitting Room - 8.74m x 4.72m (28'8 x 15'6) - Bespoke units with painted finish, granite working surfaces incorporating twin Belfast sink, island unit with oak breakfast bar, electric range cooker (not included in the sale) with stainless steel hood, LED lighting, integrated microwave. Karndean flooring, Finlock radiator, archway to sitting area, fireplace with ornate surround and multi-fuel stove, panelled walls and back stair case off.
Rear Porch - Centre opening French doors, roof light and glazed door to garden.
Boot Room - 3.66m x 2.97m (12' x 9'9) - Tiled floor, LED lighting and tall window., fitted cupboards.
Lobby From Main Hall -
Utility Room/ Cloaks - With Belfast sink, oak working surface, tall cupboard, low suite wc, chrome heated towel rail, LED lighting.
Door To Cellar - 3 barrel vaulted cellar compartments with stone and brick thrawls.
First Floor -
Landing - With bench seat, built-in cupboard and corridor to bedroom one.
Bedroom One - 4.98m x 4.37m (16'4 x 14'4) - Hob typed fireplace, radiator.
Ensuite - 2.74m x 2.13m (9' x 7') - Basin, cabinets, low suite wc, bath with shower screen and rain shower, chrome heated towel rail, built-in cupboard.
Archway From Corridor To:- -
Bedroom Two - 4.09m x 4.06m (13'5 x 13'4) - Large built-in cupboard, hob type fireplace, radiator.
Bedroom Three - 3.38m x 3.58m (11'1 x 11'9) - Radiator and connecting door to bedroom four.
Bedroom Four - 4.67m x 4.06m (15'4 x 13'4) - With radiator, hob fireplace, built-in cupboard.
Lobby - With door to bathroom and corridor.
Bathroom - 3.23m x 1.45m (10'7 x 4'9) - Bath with rain shower over, basin, low suite wc, chrome heated towel rail.
Corridor To:- -
Bedroom Five - 4.37m x 3.51m (14'4 x 11'6) - Hob type fireplace, radiator.
Ensuite - 4'11 wide shower, pedestal basin, low suite wc, chrome heated towel rail.
Corridor Leads To Back Stairs -
Bedroom Six - 4.95m x 3.51m (16'3 x 11'6) - Hob fireplace, vaulted ceiling, halogen lighting and stairs to a mezzanine bathroom.
Mezzanine Bathroom - Freestanding bath, low suite wc, basin, chrome heated towel rail, tiled floor, storage recess, conservation roof light, chrome heated towel rail. LED lighting.
Outside - There is a rear yard area with stone trough, outside tap and lean to log store.
The property has a gravelled driveway and turning space.
Store Room - 5.49m x 4.57m (18' x 15') - With fluorescent lighting.
Store - 6.71m x 4.83m (22' x 15'10) - With granite sets and trough.
Loft Room - Stone steps from the rear yard lead to a Loft Room above the Store Room (the doorway entrance has been replaced with a glazed partition and this room forms part of the Freehold.
Double Car Port - There is a range of out-buildings, brick construction, under a mono-pitched roof. This building is recently renovated with a new roof and doors. The building incorporates a double open bay car port.
Tack Room -
Four Stables -
The original wall dividing the gardens from the paddock has a pair of double ledged and braced gates. There is a gateway to the paddock on Church Lane presenting an opportunity to create a new direct driveway from Church Lane to the Manor House. This will provide a stunning view of the house on approach.
Services - Mains water and electricity are connected to the property. Drainage is by means of a septic tank.
Tenure - The property is freehold.
Mortgage - Mortgage advice is available through our Mortgage Adviser. Your home is at risk if you do not keep up repayments on a mortgage or other loan secured on it.
Possession - Vacant possession will be given on completion.
Viewing - Strictly by appointment with the selling agents.
Access - Access from Church Lane, Fledborough is by right of way.
Flying Freehold - The external ground floor store room and store is subject to a Flying Freehold.
A Flying Freehold owned by The Pottery is shown coloured blue on the attached plan.
Planning Permission - Planning permission was previously granted under Bassetlaw District Council reference 17/00856/FUL for a menage, a small wooden stable block in the paddock and a 3 bay brick built garage to the front of the property.
Council Tax Band - Council Tax Band G under Bassetlaw District Council.
Disclosure - Proposals at consultancy stage for a solar panel installation on land adjacent to Marnham Road whilst this is unlikely to have any direct visual impact from the property. There are proposals to remove four existing electricity pylons crossing land to the south of the property and Church Lane (https:/
ational-infrastructure-consenting.planninginspectorate.gov.uk/projects/EN010159)
Read less