Fishpond Hill Farm is an individually designed, substantial, split level, four bedroom detached house in need of renovation and refurbishment throughout, set in 1.6 acres or thereabouts in a delightful south facing position.
A rather interesting opportunity has arisen to purchase this unique and substantial, split level, four bedroom detached house, set in 1.6 acres or thereabouts with a large lake.
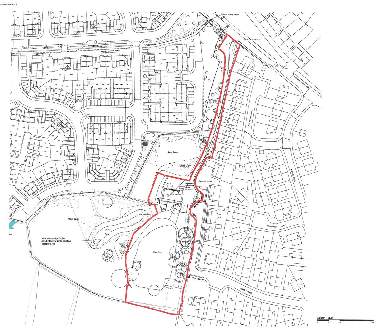
Fishpond Hill Farm was individually designed and built in the 1980s from cavity brick/blockwork beneath a pitched roof with coverings of concrete interlocking tile. The house and land sale area are shown edged in red on the attached plan within these particulars.
The property requires renovation and refurbishment throughout and offers prospective purchasers a superb opportunity to create a truly stunning, individual home. The gross internal floor area extends to approximately 2,827 sq ft (plus integral double garage) with living accommodation spanning over three floors.
The main entrance door opens to an initial entrance hall area with access to the garage. Stairs lead up to the main hallway which leads to a family bathroom, a large billiard/games room, a conservatory with 6.5m vaulted ceiling, plus further vaulted greenhouse/conservatory and bedrooms three and four each with their own separate study/dressing room area with direct access to the conservatory. Stairs lead up to an initial landing with access to a master bedroom suite with fitted wardrobes, a separate walk-in wardrobe and an en suite. A sliding patio door opens to a balcony area with steps leading down to the greenhouse/conservatory. Stairs up to the main landing leads to bedroom two, a large lounge and another conservatory with wonderful south facing rear views over the rear garden and lake beyond. Completing the accommodation is a kitchen/diner, utility, side entrance lobby and a WC. The property has majority hardwood double glazed windows, solar panels (owned by the property) and electric ducted warm air central heating.
Outside - Fishpond Hill Farm occupies a fantastic and elevated position from the adjacent dwellings to the eastern boundary, hidden from the road and is accessed from Brick Kiln Lane by means of a long, private driveway and also from double gates at the end of Romsey Place cul-de-sac which runs alongside the driveway turning area. There is off road parking for numerous vehicles with turning space and an integral double garage with an electric up and over door. Steps to the front of the property leads up to the other side of the house at its highest point with pathway leading round to the rear of the property where there are two patios on different levels enjoying lovely south facing rear views over the garden and lake beyond. The gardens are also in need of an overhaul, centred around a large lake, currently laid to extensive grass to the front, side and rear with extensive, mature shrubs and trees surrounding the lake and to the eastern boundary.
Adjacent New Development - Please note, the land adjacent to the property to the western and northern boundaries has planning permission approved by Mansfield District Council under planning reference number 2024/0642/VCON for 183 homes of mixed property types for both affordable and private sale. For reference, please refer to the plan within these particulars. We understand that the developer, Keepmoat Homes, will be erecting a boundary fence to the western and northern boundaries to separate Fishpond Hill Farm from the development. The height of the boundary and the material to be used has not been decided and is still in the planning stage to be confirmed in due course.
A SIDE ENTRANCE DOOR LEADS THROUGH TO THE:
Entrance Porch - 2.16m x 0.91m (7'1" x 3'0") - With tiled floor and connecting obscure glazed door leads through to the:
Split Level Entrance Hall - 3.10m x 2.16m (10'2" x 7'1") - With tiled floor, personal door through to the double garage and stairs to the main hallway.
Hallway - 4.62m x 3.25m max (15'2" x 10'8" max) - (Narrows to 2'9"). With double glazed window to the front elevation and stairs to the first floor landing.
Games Room/Billiard Room - 9.78m into wardrobes x 4.45m (32'1" into wardrobes - Having fitted wardrobes with shelving and sliding fronted doors. Airing cupboard housing the hot water cylinders. Connecting doorway leads to the vaulted sunroom.
Vaulted Conservatory - 5.61m x 1.98m (18'5" x 6'6") - With 6.5m vaulted ceiling and extensive, south facing, floor-to-ceiling windowpanes overlooking the rear garden and lake as well as a door leading out onto the rear patio and garden. Tiled floor and side door access to:
Vaulted Greenhouse/Conservatory - 5.61m x 1.68m (18'5" x 5'6") - With 4.2m vaulted ceiling and extensive, south facing, floor-to-ceiling windowpanes overlooking the rear garden and lake plus two windows to the side elevation. Tiled floor, water supply and steps leading up to bedroom two.
Bedroom 3 - 2.84m x 2.72m (9'4" x 8'11") - Having fitted wardrobes, overhead storage cupboards and a dressing table with drawers. Connecting doorway leads to leading to:
Study/Dressing Room - 2.84m x 1.47m (9'4" x 4'10") - With tiled floor and sliding patio door leading through to the sunroom.
Bedroom 4 - 2.72m x 2.64m (8'11" x 8'8") - Having fitted wardrobes, overhead storage cupboards and drawers. Connecting doorway leads to leading to:
Study/Dressing Room - 2.57m x 1.55m (8'5" x 5'1") - With tiled floor and sliding patio door leading through to the sunroom.
Family Bathroom - 3.58m x 2.08m (11'9" x 6'10") - Having a four piece suite comprising steps leading to a large corner Jacuzzi bath. Pedestal wash hand basin with mixer tap. Low flush WC. Bidet with mixer tap. Laminate floor, tiled floor, electric heated towel rail and obscure double glazed window to the front elevation.
First Floor Split Level Landing - 3.66m max x 3.12m max (12'0" max x 10'3" max) - With built-in storage cupboard and double glazed windows to the front, rear and side elevations.
Master Bedroom 1 - 5.56m max x 4.24m into wardrobes (18'3" max x 13'1 - Having fitted wardrobes with hanging rails and shelving and mirror fronted sliding doors. Double glazed window to the side elevation, two double glazed windows to the rear elevation and sliding patio door leads through to a balcony area with steps leading down to sunroom two.
Balcony - 1.63m x 1.30m (5'4" x 4'3") - With tiled floor and south facing views over the rear garden and lake. Tiled steps lead to sunroom two.
Walk-In Wardrobe - 2.03m x 1.52m (6'8" x 5'0") - With hanging rails and shelving and sliding opening doors.
En Suite - 2.97m x 1.22m (9'9" x 4'0") - Having a small panelled bath with mixer tap and electric Triton shower above with shower screen. Pedestal wash and basin with mixer tap. Low flush WC. Electric heated towel rail, laminate floor, tiled walls, shaver point, fitted cabinet above the sink with mirror fronted doors and obscure double glazed window to the front elevation.
RETURNING TO THE LANDING STAIRS LEAD UP TO:
Bedroom 2 - 3.58m x 2.26m (11'9" x 7'5") - With double glazed window to the front elevation.
Lounge - 5.69m x 5.64m (18'8" x 18'6") - A large reception room featuring a vaulted, 3.5m sloping ceiling, double glazed windowpane to the rear elevation overlooking the south facing garden and lake, and connecting door to:
Vaulted Conservatory - 4.62m x 3.02m (15'2" x 9'11") - With 3.8m vaulted ceiling, tiled floor, side opening overlooking the sunroom below and large, south facing, floor-to-ceiling windowpanes to the rear elevation overlooking the garden and lake. External side entrance door.
Kitchen/Diner - 4.80m x 4.55m (15'9" x 14'11") - A spacious kitchen/diner with vaulted, 3.5m sloping ceiling with double glazed window to the side elevation and sliding patio door through to sunroom 3. The kitchen has a range of high gloss cabinets comprising wall cupboards, including ample pantry cupboards, base units and drawers with large brushed chrome handles. Inset 1 1/2 bowl sink with drainer and chrome mixer tap. Integrated double oven, four ring ceramic electric hob with stainless steel extractor hood above. Fisher Paykel double drawer dishwasher. There is an island with further base units and drawers, an integrated double drawer fridge/freezer, work surfaces and space for stools underneath. Tiled floor and ample ceiling lighting.
Utility - 3.18m x 2.01m (10'5" x 6'7") - Having wall cupboards, base units and drawers with work surfaces. Plumbing for a washing machine. Tiled floor and obscure double glazed window to the front elevation.
Side Entrance Lobby - 1.50m x 0.84m (4'11" x 2'9") - With tiled floor and side entrance door.
Wc - 1.47m x 1.04m (4'10" x 3'5") - Having a low flush WC, corner wash and basin, tiled floor, tiled walls and obscure double glazed window to the front elevation.
Integral Double Garage - 5.69m x 5.56m (18'8" x 18'3") - Equipped with power and light. Built in cupboard housing the Horstmann warm air central heating boiler. Cupboard housing the electricity meter and consumer units. There are fitted wall cupboards, base units, drawers shelving and work surfaces. Quarry tiled floor, double glazed window to the side elevation, personal door through to the entrance hall and remote controlled electric up and over door.
Viewing Details - Strictly by appointment with the selling agents. For out of office hours please call Alistair Smith, Director at Richard Watkinson and Partners on 07817-283-521.
Tenure Details - The property is freehold with vacant possession upon completion.
Services Details - Mains water and electricity are connected and mains drainage. Electric ducted warm air central heating. No mains gas connected.
Mortgage Advice - Mortgage advice is available through our independent mortgage advisor. Please contact the selling agent for further information. Your home is at risk if you do not keep up with repayments on a mortgage or other loan secured on it.
Fixtures & Fittings - Any fixtures and fittings not mentioned in these details are excluded from the sale price. No services or appliances which may have been included in these details have been tested and therefore cannot be guaranteed to be in good working order.
Read less