An individual building plot with outline planning permission for a self-build detached three bedroomed bungalow. The site area is 655 sq.m (0.16 acre) or thereabouts. The proposed bungalow has an estimated internal area of 102 sq.m (1100 sq.ft) approximately.
An individual building plot with outline planning permission for a self-build detached three bedroomed bungalow. The site area is 655 sq.m (0.16 acre) or thereabouts. The proposed bungalow has an estimated internal area of 102 sq.m (1100 sq.ft) approximately.
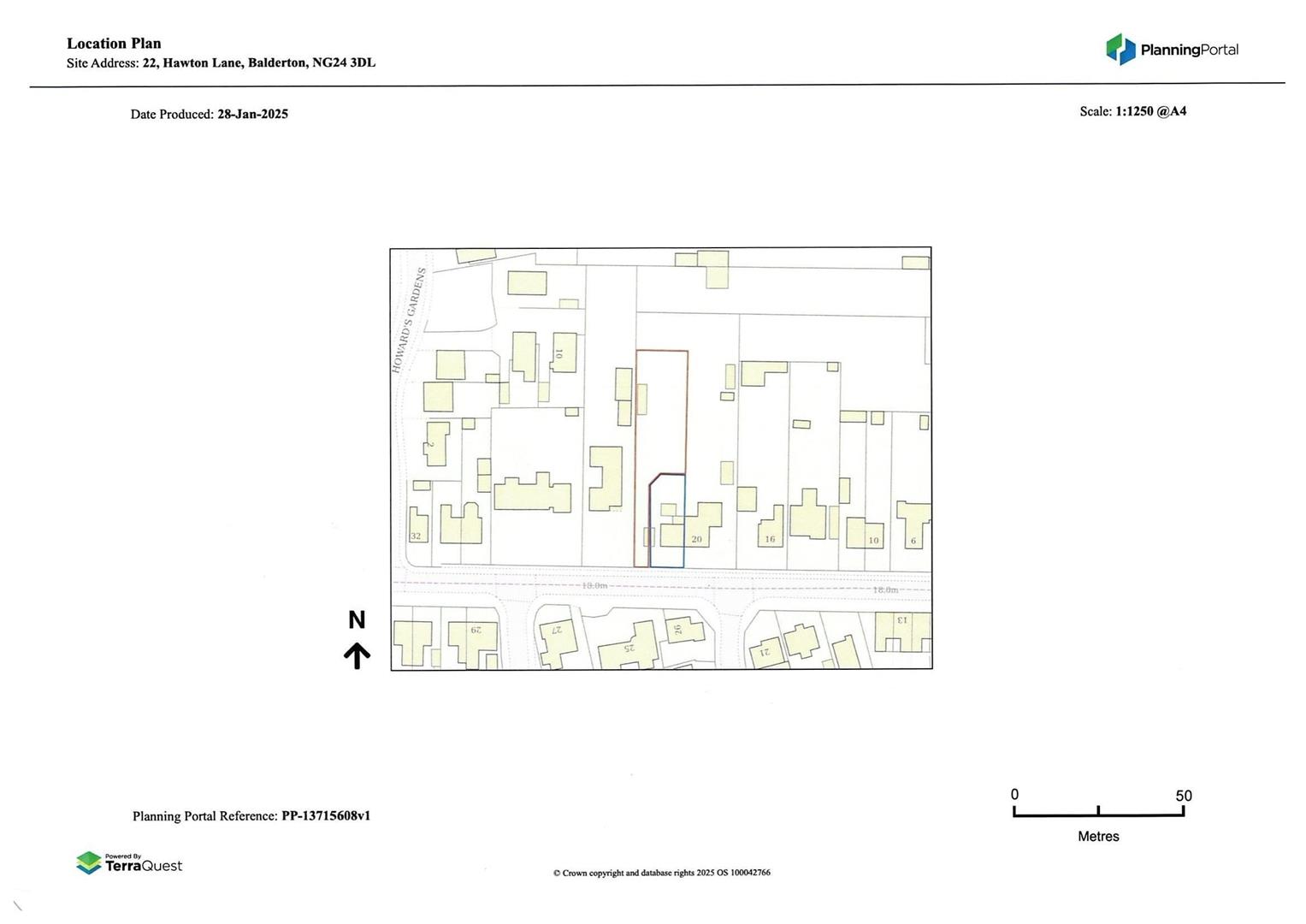
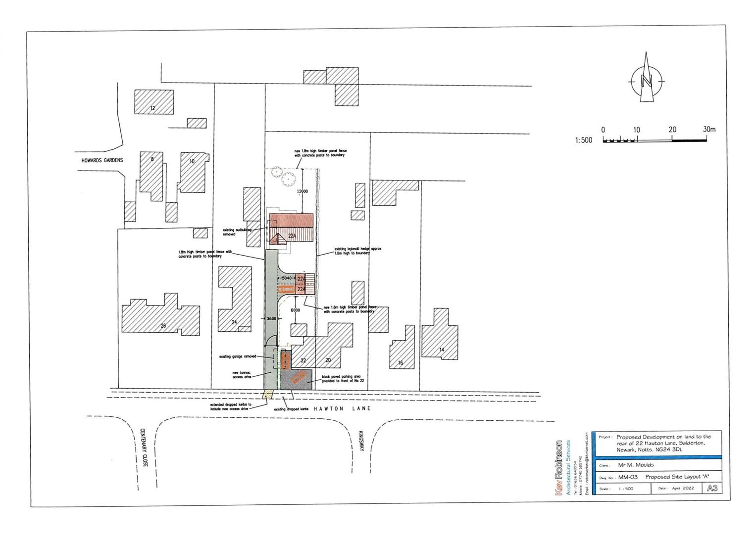
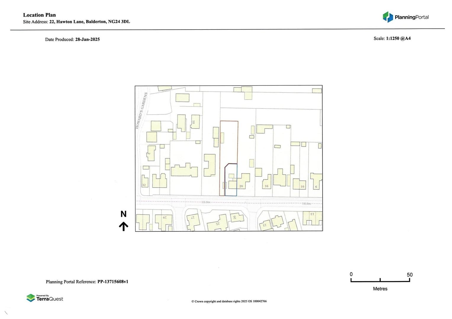
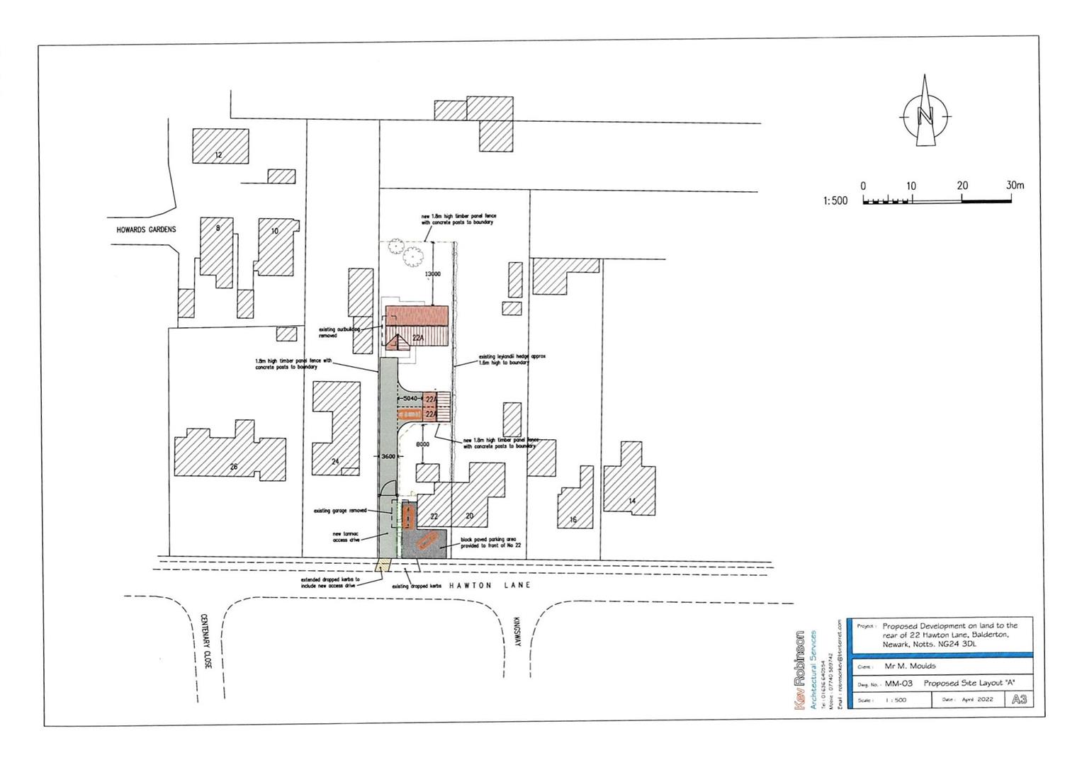
The site comprises the rear garden of the existing dwelling at 22 Hawton Lane. The plot providing privacy and seclusion is bounded by a hedgerow and ancient woodland to the rear. Access is by extended dropped kerbs to Hawton Lane and a new 3.6m wide driveway with turning area and parking spaces.
The plot is situated in an established residential area close to primary and secondary schools, supermarkets, local shopping facilities and bus services.
The site is level and generally in this area the soil structure is a light sandy loam.
An ideal opportunity for a private buyer and self-build or a developer's opportunity in an area where new bungalows are in short supply and normally carry premium values.
Town And Country Planning - Outline planning permission is granted for demolition of existing garage and erection of 1 No. single storey dwelling (all matters reserved except access and scale).
The decision notice is dated 12th May 2025. An application for approval of the reserved matters shall be made to the local planning authority not later than three years from the date of this permission.
The residential dwelling shall be constructed as a self-build dwelling in line with the definitions under Self-build and Custom Build Housing in the 2015 Housing & Planning Act. The dwelling, therefore, permitted shall be a person or persons who had primary input into the design and layout of the dwelling. Otherwise a developer may be liable for the Community Infrastructure Levy (CIL) charge.
Copies of the planning permission and documents submitted can be viewed on the Newark and District Council planning website - https://www.newark-sherwooddc.gov.uk/your-council/planning-services/ or they are available at the offices of Richard Watkinson & Partners.
Services - Mains water, electricity, gas and drainage are understood to be available but purchasers should make their own enquiries as to the technical details for connection.
Conditions Of Sale - 1. The purchaser shall be responsible for demolition of the existing garage and construction of a block paved parking area provided to the front of 22 Hawton Lane prior to commencement of the development.
2. The purchaser shall be responsible for boundary treatments including fencing as stated on the planning permission. A new 1.8m high timber panel fence with concrete posts to the boundary of 22 Hawton Lane and to the rear boundary of the site. The existing Leylandi hedge shall be maintained to 1.6m height.
3. The vendor shall retain a 0.15m strip of land to the perimeter of the site. Any development extended to the adjoining land, therefore, will be subject to negotiation for access.
Tenure - The property is freehold.
Possession - Vacant possession will be given on completion.
Viewing - Strictly by appointment with the selling agents.
Possession - Vacant possession will be given on completion.
Read less