0
Overview
Land for sale in High Street, Bottesford, Nottingham
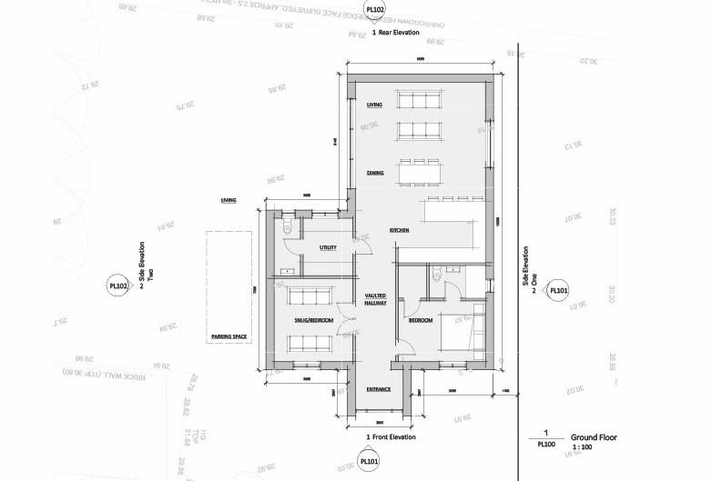
** SINGLE BUILDING PLOT ** PLANNING APPROVED FOR SELF BUILD BUNGALOW ** PERMISSION GRANTED JANUARY 2026 ** REFERENCE NO: 24/00815/FUL ** HEART OF THE VILLAGE LOCATION ** WALKING DISTANCE TO LOCAL AMENITIES ** IDEAL DOWNSIZE PROJECT ** HIGHLY REGARDED VALE OF BELVOIR VILLAGE **An interesting opportunity to purchase a level building plot for one "self build" single storey dwelling located on the southerly side of the High Street within the conservation area of this pretty and well regarded Vale of Belvoir village. Melton Borough Council have granted full planning permission under Reference No: 24/00815/FUL for a self build detached bungalow thoughtfully designed to provide versatile living whi...
Read more
** SINGLE BUILDING PLOT ** PLANNING APPROVED FOR SELF BUILD BUNGALOW ** PERMISSION GRANTED JANUARY 2026 ** REFERENCE NO: 24/00815/FUL ** HEART OF THE VILLAGE LOCATION ** WALKING DISTANCE TO LOCAL AMENITIES ** IDEAL DOWNSIZE PROJECT ** HIGHLY REGARDED VALE OF BELVOIR VILLAGE **
An interesting opportunity to purchase a level building plot for one "self build" single storey dwelling located on the southerly side of the High Street within the conservation area of this pretty and well regarded Vale of Belvoir village. Melton Borough Council have granted full planning permission under Reference No: 24/00815/FUL for a self build detached bungalow thoughtfully designed to provide versatile living which, when complete, will extend to just in excess of 1,200 sq.ft.
The property would be ideal for those looking to commission a home for their own occupation, looking to create a manageable single storey dwelling within walking distance of local amenities.
The plot is visible from the roadside but should a physical inspection of the site be required we request that you contact ourselves as the selling agent to arrange access.
Bottesford - The village of Bottesford is well equipped with local amenities including primary and secondary schools, a range of local shops, doctors and dentists, several public houses and restaurants, railway station with links to Nottingham and Grantham which gives a fast rail link to London's Kings Cross in just over an hour. The A52, A46 and A1 are also close by providing excellent road access.
Planning Permission - Details can be found on Melton Borough Council's website under planning applications - Ref: 2400815/FUL.
Additional Notes - Please note, the site is on a Possessory Title, not Title Absolute.
Planning is granted for a "self build" single storey dwelling and therefore is for a clients own occupation.
Read less
Key info
- Single Building Plot
- Planning Approved For Self Build Bungalow
- Permission Granted January 2026
- Reference No: 24/00815/FUL
- Heart Of The Village Location
- Walking Distance To Local Amenities
- Ideal Downsize Project
- Highly Regarded Vale Of Belvoir Village