* * * * OPEN DAY FRIDAY 23RD JANUARY 10AM - 1PM * * * * A rare opportunity to purchase a one or two bedroom leasehold apartment for the over 55's with a lift and parking, situated in a desirable suburban location close to a wealth of facilities.
A superb development of 15 one and two bedroom apartments for the over 55's with a lift. The apartments form part of The Grange development of 57 bungalows and 15 apartments of striking contemporary design, situated in a desirable suburban location off Sandhurst Avenue within walking distance to excellent facilities.
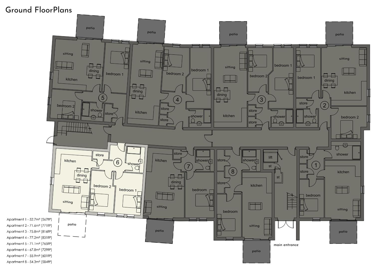
Apartment 6: 729 sq ft. A ground floor apartment occupying a corner position, comprising an entrance hall, airing cupboard, open plan living/dining/kitchen, two double bedrooms and a shower room.
The property comes with carpets and LVT flooring, fitted wardrobes to bedroom one, integrated appliances to include an oven, hob, extractor hood, dishwasher, fridge/freezer and a washer/dryer, electric storage heaters, UPVC double glazing and a 10-year Premier Guarantee Warranty.
Externally, there is a paved patio to the front elevation, further communal gardens and one allocated parking space.
The property has a 999 year lease. Service charge for maintenance and upkeep to the internal and external communal areas are paid to the managing agent: Block Property Solutions of approximately 1,545 per annum plus an additional estate charge of approximately 191 per annum. Peppercorn ground rent.
This is an extremely rare opportunity to acquire a brand new apartment ideally suited to downsizers, couples or single occupiers looking for modern, low maintenance living.
A COMMUNAL FRONT ENTRANCE DOOR PROVIDES ACCESS THROUGH TO THE:
Communal Entrance Hall - 7.52m x 2.41m (24'8" x 7'11") - With stairs and lift to the first floor. Automatic lighting. Connecting door to:
Communal Inner Hallway - 24.00m x 2.41m (78'9" x 7'11") - With automatic lighting.
Apartment 6 (Ground Floor) -
Entrance Hall - 3.56m max x 2.77m (11'8" max x 9'1") - An L-shaped hallway with electric storage heater, LVT flooring and consumer unit.
Airing Cupboard - 2.08m x 0.79m (6'10" x 2'7") - With power and light point, LVT flooring and Stiebel Eltron hot water cylinder.
Open Plan Living/Dining/Kitchen - 6.65m x 3.94m (21'10" x 12'11") - Having modern wall cupboards, base units and drawers complemented by quartz work surfaces and matching upstands. Under mount 1 1/2 bowl stainless steel sink with drainer and mixer tap/boiling hot tap. Integrated Bosch single electric oven, four ring induction hob and extractor hood above. Integrated fridge/freezer and integrated dishwasher. Six ceiling spotlights, LVT flooring, electric storage heater, television point, telephone point, floor-to-ceiling double glazed window to the side elevation and double glazed sliding patio doors to the front elevation leading out onto the patio garden.
Bedroom 1 - 4.55m x 2.82m (14'11" x 9'3") - The first of two double bedrooms, having fitted wardrobes with double hanging rails and shelving. Electric storage heater, television point and two floor-to-ceiling double glazed windows to the front elevation.
Bedroom 2 - 4.52m x 2.64m max (14'10" x 8'8" max) - With electric storage heater, television point and double glazed window to the front elevation.
Shower Room - 2.77m x 1.93m (9'1" x 6'4") - Having a modern three piece white suite comprising a large tiled shower enclosure with rainfall shower plus additional shower attachment. Vanity unit with inset wash hand basin with swan-neck mixer tap and storage cupboard beneath. Low flush WC with enclosed cistern. Part tiled walls, shaver point, electric heated towel rail, three ceiling spotlights, extractor fan and LVT flooring.
Viewing Details - Strictly by appointment with the selling agents. For out of office hours please call Alistair Smith, Director at Richard Watkinson and Partners on 07817-283-521.
Tenure Details - The property is leasehold with vacant possession upon completion. 999 year lease. Service charge for maintenance and upkeep to the internal and external communal areas are paid to the managing agent: Block Property Solutions of approximately 1,545 per annum plus an additional estate charge of approximately 191 per annum. Peppercorn ground rent.
Services Details - All mains services are connected.
Mortgage Advice - Mortgage advice is available through our independent mortgage advisor. Please contact the selling agent for further information. Your home is at risk if you do not keep up with repayments on a mortgage or other loan secured on it.
Fixtures & Fittings - Any fixtures and fittings not mentioned in these details are excluded from the sale price. No services or appliances which may have been included in these details have been tested and therefore cannot be guaranteed to be in good working order.
Read less