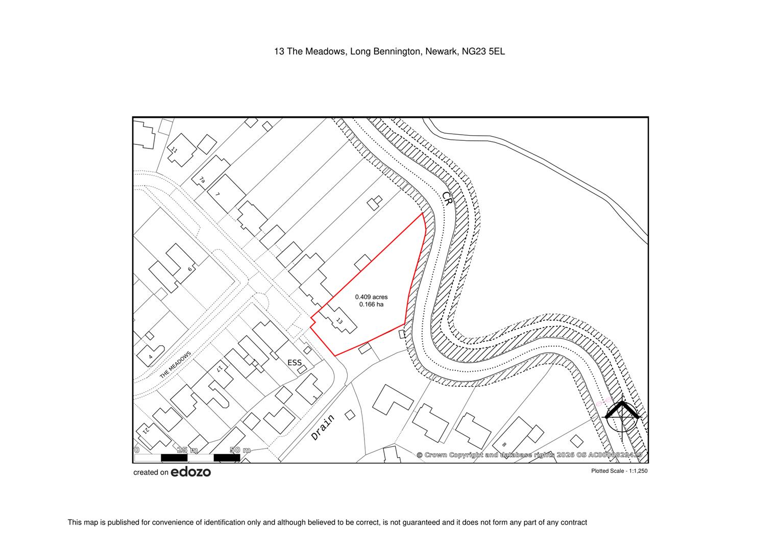
*** PRICE GUIDE ?425,000 - ?450,000 *** A detached four bedroom family home constructed in 1971, occupying a particularly generous plot extending to approximately 0.409 of an acre, with mature gardens backing directly onto the River Witham and enjoying stunning open views across the surrounding countryside.
13 The Meadows occupies a highly desirable position within this established residential area on the edge of the well served village of Long Bennington. The property offers well proportioned accommodation throughout and presents an excellent opportunity for a purchaser to update or potentially extend the property to create a contemporary family home, optimising the design to take full advantage of the exceptional setting and far-reaching views, subject to the necessary planning permissions.
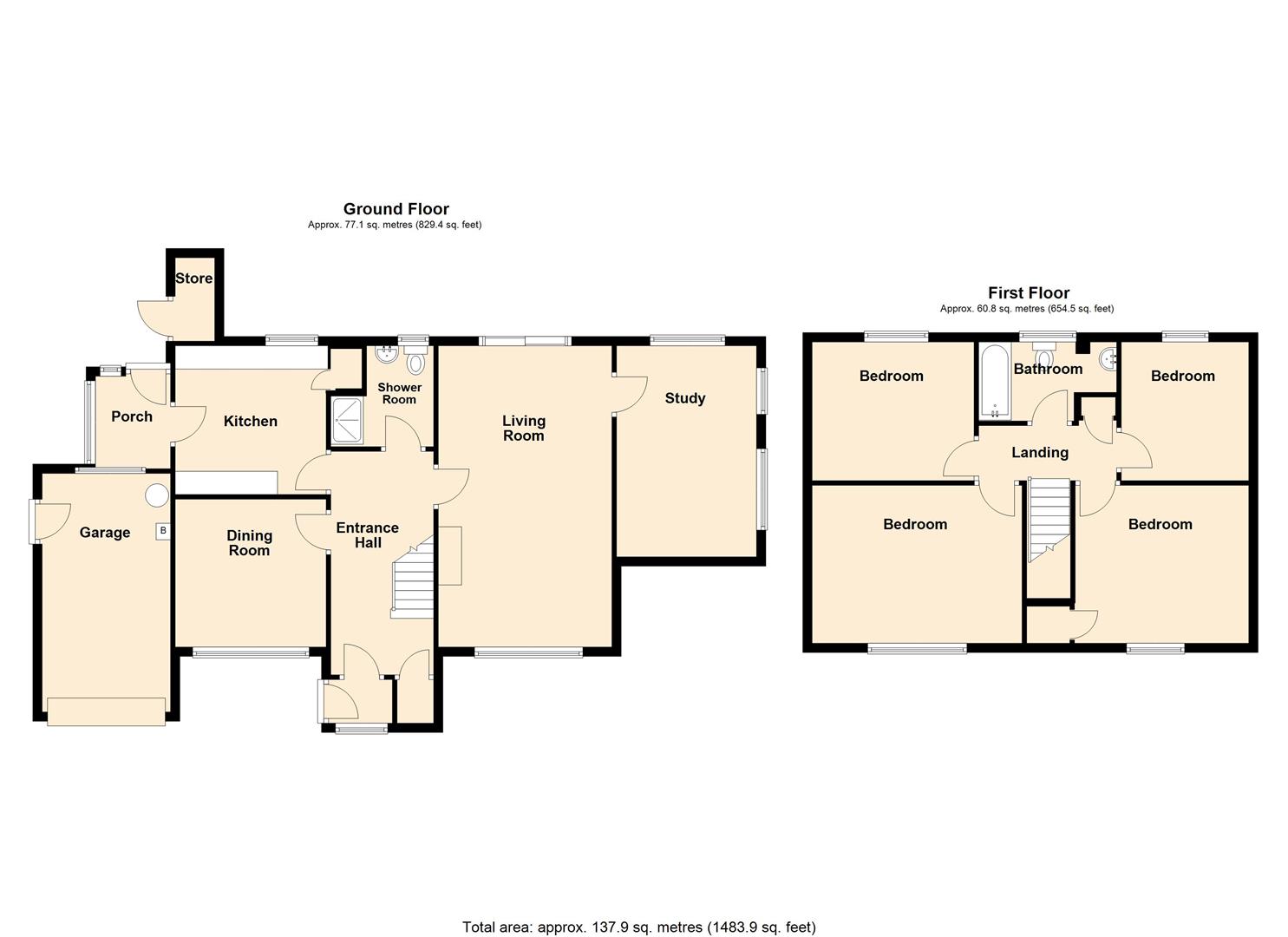
The current accommodation is arranged over two floors and comprises an entrance porch leading through to the entrance hall. There are three reception rooms including a living room, family room and dining room, providing flexible spaces for both everyday family life and entertaining. The kitchen is fitted with modernised units and is complemented by a convenient ground floor shower room with WC.
To the first floor, the landing gives access to four bedrooms, each enjoying attractive outlooks, with several benefiting from particularly impressive views across the surrounding countryside. A family bathroom serves the bedrooms.
The property benefits from gas fired central heating with a modern Viessmann boiler installed in 2018, together with UPVC double glazed windows throughout.
Outside, the property enjoys a generous plot of approximately 0.409 of an acre. To the front there is a driveway providing off-road parking along with a garage and carport. The rear gardens are a particularly attractive feature of the property, extending down towards the River Witham and providing a peaceful setting with delightful views across open countryside. The riverside setting creates a wonderful environment for enjoying the outdoors and adds to the sense of privacy and tranquillity offered by the property.
Long Bennington is a thriving and well regarded village situated conveniently between Newark-on-Trent and Grantham. The village offers an excellent range of everyday amenities including a Co-op store, medical centre, pharmacy, public houses, cafe, village hall and a well regarded primary school. There is also a regular bus service serving the surrounding towns.
For a wider range of amenities, the nearby market towns of Newark and Grantham provide extensive shopping, leisure and schooling options. Grantham railway station offers high speed rail services to London King's Cross in approximately one hour, making the area particularly attractive for commuters. The village also benefits from excellent road connections via the nearby A1.
13 The Meadows therefore represents a rare opportunity to acquire a spacious family home in a delightful riverside setting, offering significant potential to enhance and modernise the property while taking full advantage of its generous plot and beautiful countryside views.
This detached two storey house was built circa 1971 and is constructed of brick elevations under a tiled roof covering. There is a brick built family room extension under a flat roof. The windows are uPVC double glazed replacement units and the central heating system is gas fired which was fitted in 2013. A replacement boiler was fitted in 2018 and is located in the garage. The living accommodation is arranged over two floors and can be described in more detail as follows:
Ground Floor -
Entrance Porch - Front entrance door.
Entrance Hall - 4.85m x 2.29m (15'11 x 7'6) - Radiator, walk in store cupboard, staircase to first floor.
Living Room - 6.45m x 3.71m (21'2 x 12'2) - UPVC double glazed picture window to the front, aluminium framed double glazed sliding patio doors to the rear giving access to the rear garden and views of the River Witham. Stone fireplace and hearth with open grate, two radiators.
Family/Play Room - 4.55m x 3.00m (14'11 x 9'10) - Radiator, uPVC double glazed window to the rear, two uPVC double glazed windows to the side.
Dining Room - 3.33m x 3.18m (10'11 x 10'5) - UPVC double glazed picture window to the front, radiator, serving hatch to kitchen.
Kitchen - 3.15m x 3.12m (10'4 x 10'3) - Walk in pantry with wall mounted shelving. Modern white kitchen units fitted circa 2019 comprising base cupboards and drawers, working surfaces over with inset stainless steel sink and drainer and mixer tap, tiling to splashback. Eye level wall mounted cupboards, tall cupboard. Fitted appliances include Beko electric oven and NEFF gas hob. UPVC double glazed window to the rear with garden and river views. Side entrance door giving access to:
Porch - 2.34m x 2.01m (7'8 x 6'7) - A lean to porch with single glazed windows, rear entrance door built on a brick base with a polycarbonate roof.
Shower Room - 2.13m x 1.32m (7' x 4'4) - UPVC double glazed window to the rear, extractor fan. Modern white suite with low suite WC, wash hand basin, vanity cupboards under. Metro-style part tiled walls, ceramic tiled floor. Heated chrome towel radiator. Walk in shower cubicle with tiled floor and drain, fully tiled walls, rain head and hand shower fitting.
First Floor -
Landing - Built in airing cupboard with latted shelving, loft access hatch.
Bedroom One - 3.78m x 3.38m (12'5 x 11'1) - Walk in wardrobe, uPVC double glazed window to the front, radiator, two fitted single wardrobes with cupboards over.
Bedroom Two - 4.62m x 3.35m (15'2 x 11') - UPVC double glazed window to the front, radiator.
Bedroom Three - 3.53m x 3.02m (11'7 x 9'11) - UPVC double glazed window to the rear elevation, open views of the garden and river. Radiator, double wardrobe with cupboards over.
Bedroom Four - 3.02m x 2.64m (9'11 x 8'8) - UPVC double glazed window to the rear elevation, views of the garden and river. Radiator.
Bathroom - 2.18m x 1.70m (7'2 x 5'7) - (plus 3'6 x 3'4)
White suite comprising panelled bath with mixer tap and shower over, glass shower screen. Tiling to splashbacks, wash hand basin with vanity cupboard under, low suite WC. Tall storage cupboard, fully tiled walls, electric towel radiator and second towel radiator from central heating.
Outside - The property occupies a generous 0.409 acre (0.166 hectare) plot with frontage to the River Witham and stunning views of the surrounding countryside. To the front there is a post and rail fence and a garden laid to lawn and planted with mature trees and shrubs in front of the house. The tarmac driveway provides off road parking for two vehicles. Additionally there is a car port connecting between the garage and neighbouring house with accommodation for a further vehicle.
Single Garage - 5.18m x 2.74m (17' x 9') - Up and over door to the front, power and light connected. Veissman central heating boiler fitted in 2018, Unicyl hot water cylinder.
The rear garden is laid to lawn and has frontage to the River Witham. There is a wooden picket fence along the riverside. Wooden steps give access to a decking platform which in turn connects to a paved terrace and offers an outdoor seating area with open views of the surrounding countryside. The majority of the gardens are laid to lawn and planted with a variety of mature trees including willow. Timber built outbuildings include a shed connecting to an open bay store.
Tenure - The property is freehold.
Services - Mains water, electricity, gas and drainage are all connected to the property. The central heating system is gas fired with a modern Veissman boiler fitted in 2018 located in the garage.
Agents Note - Potential buyers should be aware that the section of tarmac driveway which passes the front of the plot is owned by 13 The Meadows and allows right of way access from you to Kingfisher Close. There is no maintenance liability to 13 The Meadows.
Possession - Vacant possession will be given on completion.
Viewing - Strictly by appointment with the selling agents.
Mortgage - Mortgage advice is available through our Mortgage Adviser. Your home is at risk if you do not keep up repayments on a mortgage or other loan secured on it.
Council Tax - The property comes under South Kesteven District Council Tax Band E.
Read less