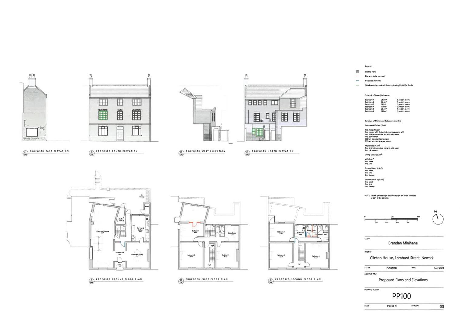
A Freehold Investment Opportunity with full planning permission for HMO occupation providing 6 double sized bedrooms and ground floor communal use. Listed Building Consent it granted for internal alterations. There is potential to increase the room numbers subject to planning permission.
The gross internal area of the building 195 sq.m approximately.
The building is a prominent Grade II Listing with street frontage within the town centre core area, close to amenities and public transport facilities.
The double sized rooms designed range from 16.6 sq.m to 28.9 sq.m.
The property is substantially built and re-roofed in recent years.
The previous planning use of the building is E Class to include Offices and the property offered as a Freehold Investment is suitable for alternative uses.
Town And Country Planning - Planning permission is granted under Newark and Sherwood District Council reference 24/00946/FUL - for change of use from Office (Use Class E) to an HMO House in Multiple Occupation (Use Class 4) comprising 6 one bed units. The conditional planning permission is dated 30th July 2024.
Listed Building Consent is granted under Newark and Sherwood District Council reference 24/00947/LBC for internal alterations including installation of a door and re-location of an existing door, infilling existing doorway and removal of a partition wall, and repairs to the sills of 3 sash windows (1 on the front and 2 on the rear elevation). The conditional permission is dated 30th July 2024.
Documents and plans may be viewed on the Newark and Sherwood District Council planning portal https://www.newark-sherwooddc.gov.uk/planningdecisions/
Services - Mains water, electricity, gas and drainage are all connected to the property.
Tenure - The property is FREEHOLD.
Rateable Value - The rateable value for Clinton House is ?16,250
Listed buildings are completely exempt from empty Business Rates until re-occupied. The property should be de-listed if the HMO development scheme proceeds.
Viewing - Strictly by appointment with the selling agents.
Possession - Vacant possession will be given on completion.
Plans - Proposed floorplans are attached to these particulars.
Read less