** DELIGHTFUL TERRACED COTTAGE ** THOUGHTFULLY RENOVATED & MODERNISED ** CONTEMPORARY FIXTURES & FITTINGS ** 2 BEDROOMS ** 1ST FLOOR CONTEMPORARY SHOWER ROOM ** UTILITY & GROUND FLOOR CLOAK ROOM ** GENEROUS FRONT GARDEN ** OFF ROAD PARKING TO THE REAR ** WALKING DISTANCE TO LOCAL AMENITIES ** VIEWING HIGHLY RECOMMENDED **
An excellent opportunity to purchase a delightful period cottage, forming one of a handful of terraced homes understood to date back to the 1700s, which has seen a recent programme of thoughtful renovation and modernisation, bringing it up to modern standards.
The property offers an archetypal cottage facade with attractive multi paned double glazed windows and composite door beneath a pantiled roof with painted brick elevations behind which lies a versatile level of accommodation with a great deal of character.
The property is set well back from the road behind a well maintained, enclosed, frontage which benefits from a southerly aspect and provides a delightful outdoor seating area. To the rear of the property is off road parking for approximately three vehicles as well as a useful timber storage shed.
Internally the cottage offers accommodation approaching 800 sq.ft. which is beautifully presented throughout, having a spacious main reception that provides both a living and dining area with an attractive solid fuel stove and engineered oak flooring. Leading off a central hallway is a useful enclosed courtyard garden and a further internal door leading into a beautifully appointed breakfast kitchen fitted with a generous range of units and integrated appliances with a useful utility and ground floor cloak room off. To the first floor there are bedrooms and a central, contemporary, shower room all tastefully presented in neutral decoration and benefitting from gas central heating.
This is a delightful, fascinating, period cottage located in this well regarded Vale of Belvoir village within walking distance of the wealth of local amenities and services and overall viewing comes highly recommended to appreciate both the location and accommodation on offer.
Bottesford - The village of Bottesford is well equipped with local amenities including primary and secondary schools, a range of local shops, doctors and dentists, several public houses and restaurants, railway station with links to Nottingham and Grantham which gives a fast rail link to London's Kings Cross in just over an hour. The A52, A46 and A1 are also close by providing excellent road access.
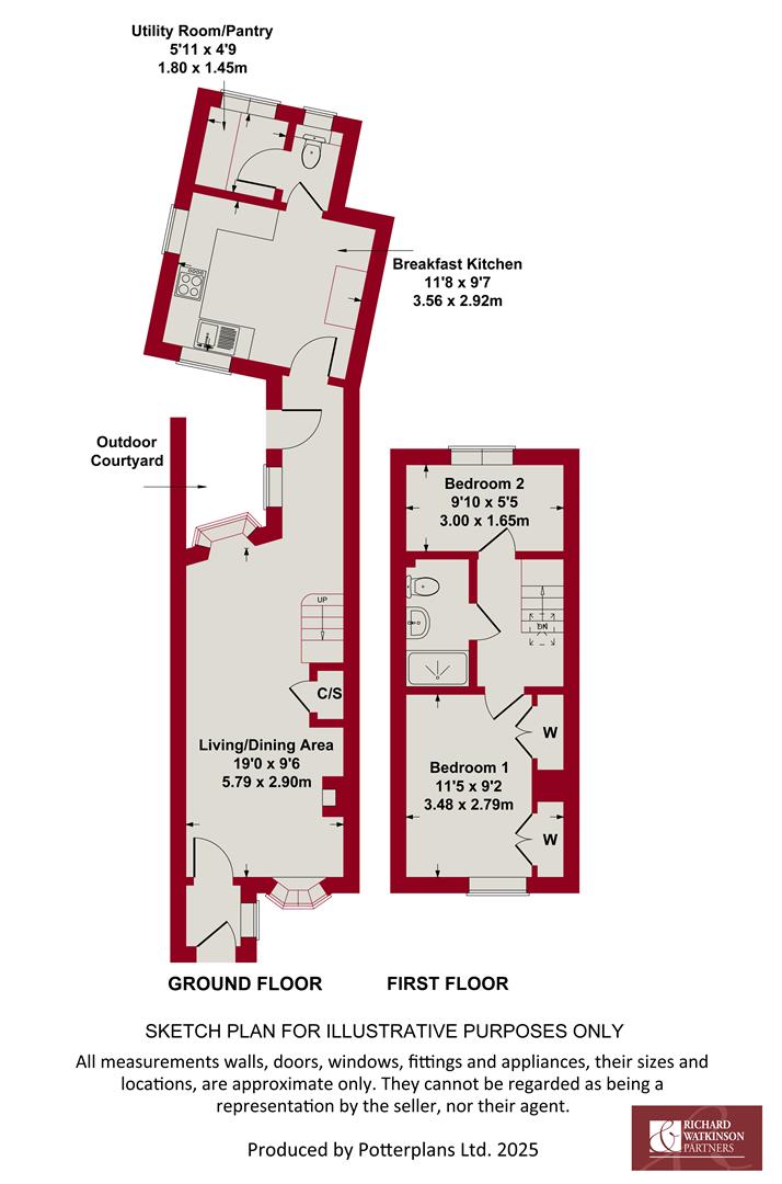
AN ATTRACTIVE COTTAGE STYLE COMPOSITE ENTRANCE DOOR FINISHED IN HERITAGE COLOURS WITH DOUBLE GLAZED LIGHTS LEADS THROUGH INTO:
Initial Enclosed Storm Porch - 1.17m x 0.94m (3'10" x 3'1") - Having a stone floor and further multi paned door leading through into:
Main Reception Areas - 9.12m x 2.87m in total (29'11" x 9'5" in total) - Comprising an initial sitting room which leads through into a central L shaped dining area and provides a substantial open plan, dual aspect reception of generous proportions which is furnished to provide two separate areas.
Initial Sitting Room - 3.30m x 3.28m (10'10" x 10'9") - Having chimney breast with attractive solid fuel stove and slate hearth, alcoves to the side, inset downlighters to the ceiling, engineered oak flooring, useful under stairs storage cupboard and double glazed bay window to the front. This in turn opens into:
L Shaped Living/Dining Area - 5.79m x 2.90m (19' x 9'6") - Having spindle balustrade staircase rising to the first floor landing, continuation of the oak flooring, inset downlighters to the ceiling and double glazed window into a courtyard area at the rear. This area in turn leads through into:
Inner Hallway - 3.78m x 1.17m (12'5" x 3'10") - Having continuation of the oak effect flooring, double glazed window and exterior door into the courtyard and further doorway leading through into:
Breakfast Kitchen - 3.56m x 2.92m (11'8" x 9'7") - Tastefully appointed having been modernised with a generous range of contemporary base and drawer units with brush metal fittings, having U shaped configuration of butchers block preparation surfaces, inset stainless steel sink and drain unit, integrated appliances including fan assisted oven, gas hob with glass splash back and chimney hood over, under counter fridge and dishwasher, part pitched ceiling with inset downlighters, attractive tiled floor, room for a small dining or breakfast table and double glazed window to two elevations. A further cottage latch door gives access into:
Ground Floor Cloak Room - 1.52m x 0.91m (5' x 3') - Having contemporary WC with integral washbasin, tiled floor, wall mounted gas central heating boiler, double glazed window to the rear and further cottage latch door leading through into:
Utility Room/Pantry - 1.80m x 1.45m (5'11" x 4'9") - Having fitted base units complementing the main kitchen, plumbing for washing machine, space for further under counter appliance, continuation of the tiled floor and double glazed window to the rear.
RETURNING TO THE MAIN RECEPTION A SPINDLE BALUSTRADE STAIRCASE RISES TO AN ATTRACTIVE:
First Floor Landing - Having part pitched ceiling with inset skylight, access to loft space above and, in turn, further cottage latch doors leading to:
Bedroom 1 - 3.48m x 2.79m (excluding wardrobes) (11'5" x 9'2" - A double bedroom having a pleasant aspect down the garden to the front, part pitched ceiling, built in wardrobes and double glazed window.
Bedroom 2 - 3.00m x 1.65m (9'10" x 5'5") - Having aspect to the rear with part pitched ceiling and double glazed window.
Shower Room - Beautifully appointed having been updated with a contemporary suite comprising large double length shower enclosure with glass screen and wall mounted shower mixer, close coupled WC and wall mounted vanity unit with rectangular washbasin, chrome contemporary towel radiator and part pitched ceiling with inset skylight.
Exterior - The property occupies a convenient location within close walking distance of the wealth of local amenities, set well back behind a picket fenced frontage beyond which lies a generous front garden that benefits from a southerly aspect and is mainly laid to lawn with a gravelled pathway leading to a flagged terrace and, in turn, the front door. To the rear of the property, accessed off an initial shared access, is a private driveway providing off road parking for three vehicles and also encompasses a useful timber storage shed and log store. To the westerly side of the property is also a small, enclosed, low maintenance courtyard area which links back into the cottage.
Council Tax Band - Melton Borough Council - Band C
Tenure - Freehold
Additional Information - Please see the links below to check for additional information regarding environmental criteria (i.e. flood assessment), school Ofsted ratings, planning applications and services such as broadband and phone signal. Note Richard Watkinson & Partners has no affiliation to any of the below agencies and cannot be responsible for any incorrect information provided by the individual sources.
Flood assessment of an area:_
https://check-long-term-flood-risk.service.gov.uk/risk#
Broadband & Mobile coverage:-
https://checker.ofcom.org.uk/en-gb/broadband-coverage
School Ofsted reports:-
https://reports.ofsted.gov.uk/
Planning applications:-
https://www.gov.uk/search-register-planning-decisions
Additional Notes - Property is understood to be on mains gas, water, electric and drainage (information taken from Energy performance certificate and/or vendor).
Please note there is a shared element with neighbouring properties regards to the vehicular access at the rear, which may have a shared responsibility for maintenance.
Read less