** LEVEL BUILDING PLOT ** PLANNING PERMISSION GRANTED FOR 3000 SQ FT DETACHED CHALET STYLE PROPERTY ** SPACE FOR DOUBLE GARAGE - SUBJECT TO PLANNING PERMISSION ** PLOT IN THE REGION OF 849 SQ M ** WESTERLY ASPECT ** ESTABLISHED TREES ** DELIGHTFUL SETTING ** UNIQUE OPPORTUNITY **
A unique opportunity to acquire a level building plot in a delightful tree-lined location within this highly regarded area of the village, offering immense potential to fulfill the planning that was granted in April 2021. The current planning permission expires in April 2027.
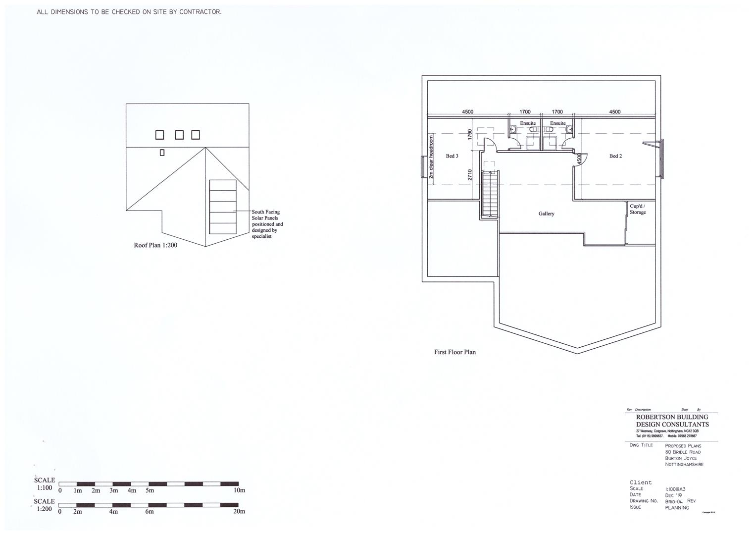
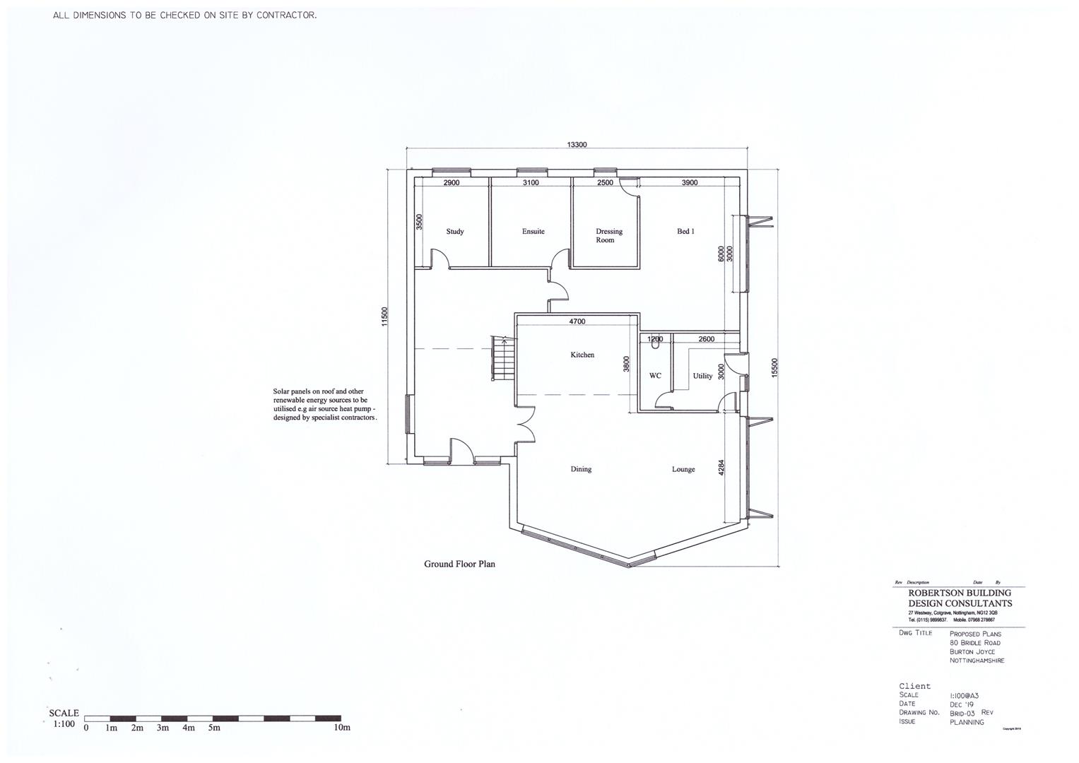
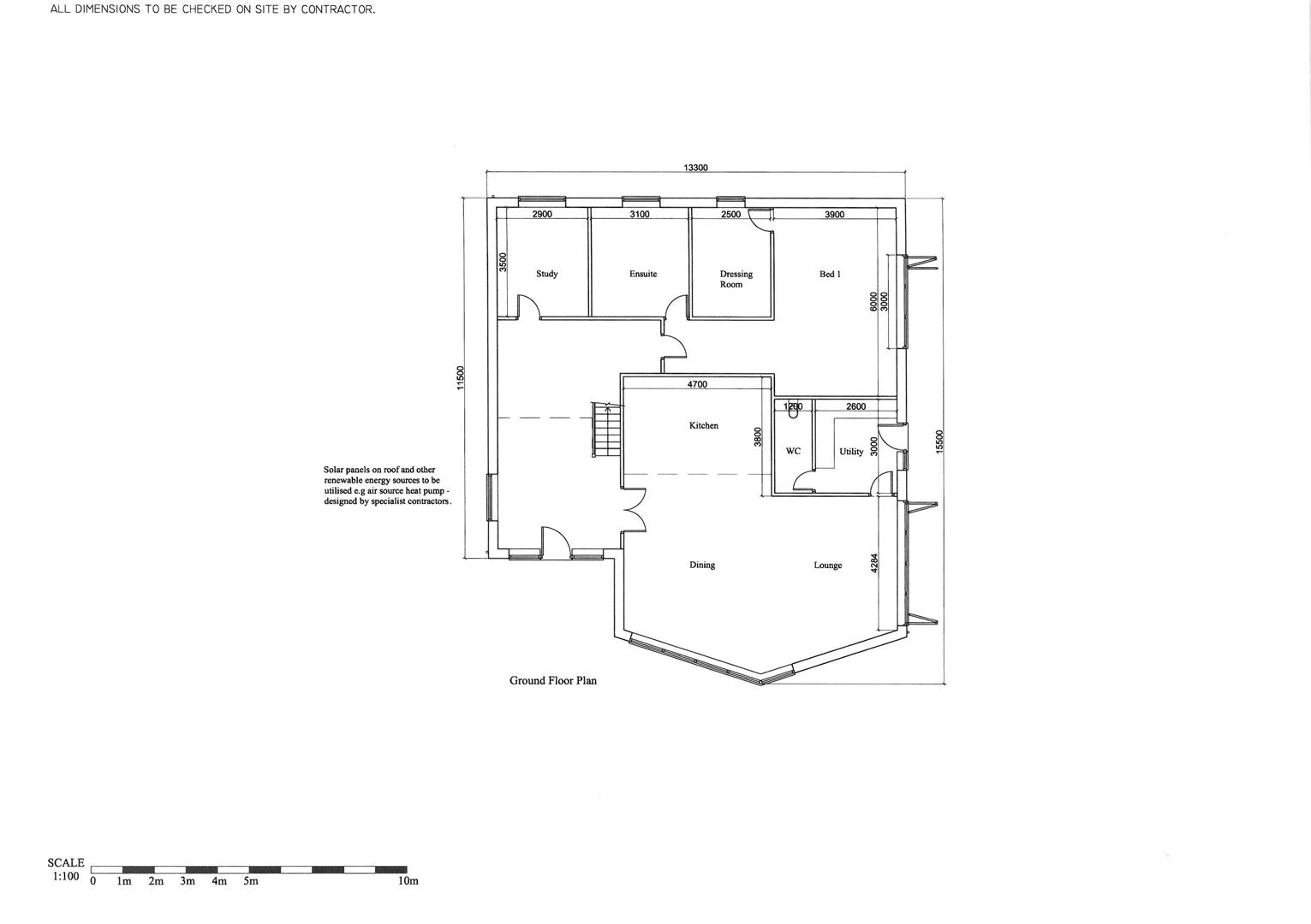
Planning permission was granted on appeal by Gedling Borough Council. The permission is for a really interesting individual detached contemporary chalet style dwelling which will offer accommodation approaching 3000 sq ft with a great deal of versatility in its layout, making use of its wonderful westerly aspect. The accommodation will be flooded with light via its attractive glazed gable end.
The total plot extends to around 849 sq m and would be perfect for those looking to commission a bespoke build to their own requirements, located in a delightful setting within walking distance of the heart of this highly regarded and well served Trent-side village.
Burton Joyce is well equipped with amenities including a variety of shops, post office, public houses, primary school, dentist and doctors surgeries, excellent bus and rail links to Nottingham as well as good commuting links via the A52 and A46 giving easy access to the A1 and M1.
Services - Prospective purchasers will have to make their own enquiries with regard to services available to the site.
Tenure - The property is Freehold.
Planning Permission - Details can be found under Gedling Borough Council - Ref 2024/0008
Additional Information - Please see the links below to check for additional information regarding environmental criteria (i.e. flood assessment), school Ofsted ratings, planning applications and services such as broadband and phone signal. Note Richard Watkinson & Partners has no affiliation to any of the below agencies and cannot be responsible for any incorrect information provided by the individual sources.
Flood assessment of an area:-
https://check-long-term-flood-risk.service.gov.uk/risk#
Broadband & Mobile coverage:-
https://checker.ofcom.org.uk/en-gb/broadband-coverage
School Ofsted reports:-
https://reports.ofsted.gov.uk/
Planning applications:-
https://www.gov.uk/search-register-planning-decisions
Read less