A freehold investment property comprising five retail shops producing a gross income of ?43,600 per annum, and upper floors with potential for residential conversion subject to planning consent. Pre-application Planning Advice on a scheme for six flats has been obtained and proposed unit drawings prepared by David Dakin Architects.
A freehold investment property comprising 5 retail shops producing a gross income of ?43,600 per annum, and upper floors with potential for residential conversion subject to planning consent. Pre-application Planning Advice on a scheme for 6 flats has been obtained and proposed unit drawings prepared by David Dakin Architects.
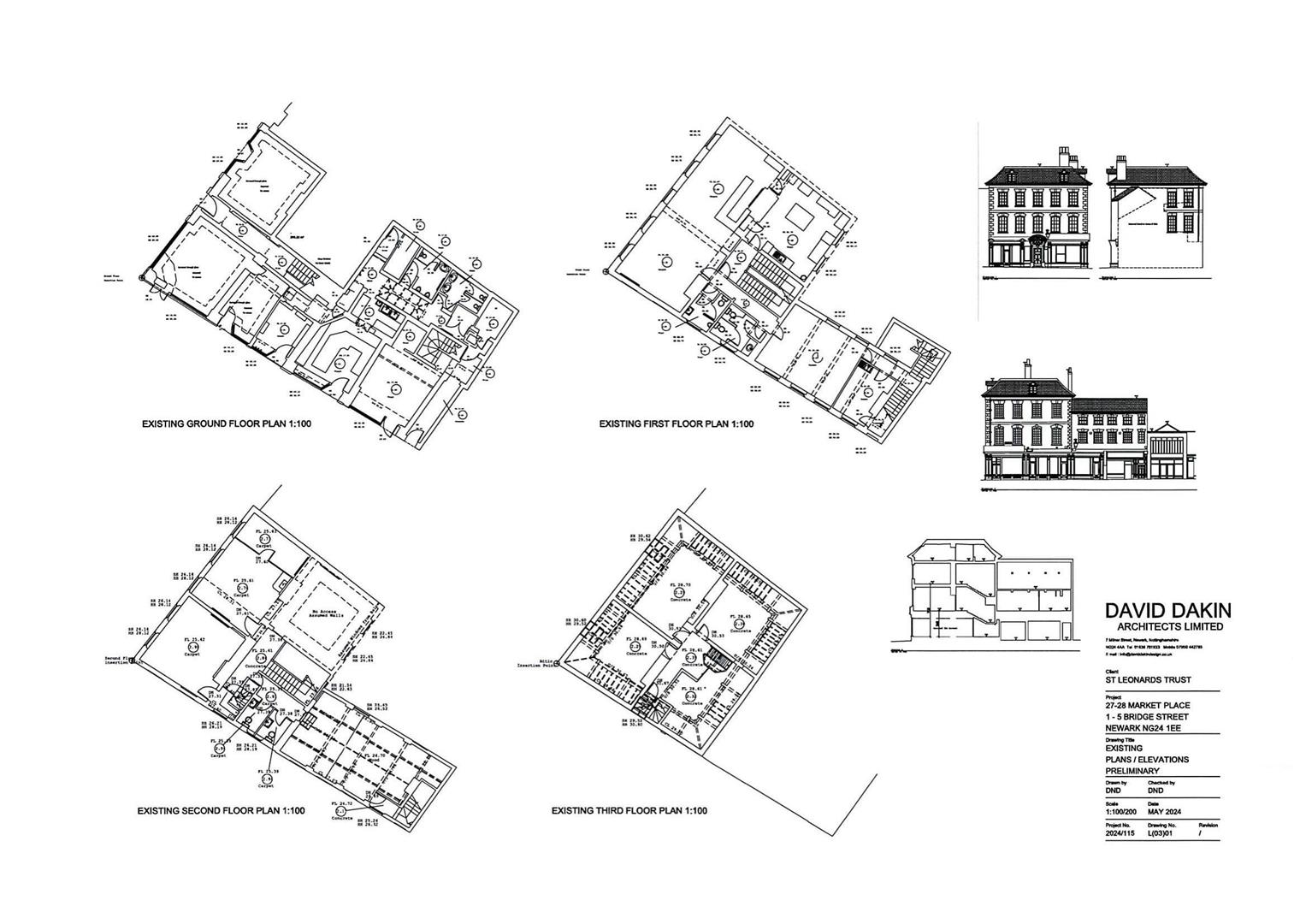
The property comprises an important Grade II* Listed building in a prime trading area situated on the corner of Bridge Street and Market Place.
Newark on Trent is a sizeable market town with a residential population of 29,748 approximately together with a catchment area providing a further 113,000 population. The town is placed centrally in the UK and well located for access to the A1 and A46 trunk roads. Newark on Trent is on the main East Coast railway line with services to London and Edinburgh. Journey times between Newark Northgate Railway Station and London King's Cross are just over 75 minutes.
The town designated as a growth point is experiencing considerable development within the residential, retail and commercial sectors. The population is expanding and as a retail centre the town is thriving. There is a wonderful historic history to the town including the 12th Century Castle, riverside areas, Georgian cobbled Market Square and St Mary's Church, being focal points of the town. The National Civil War Museum is located within the town. Major retailers within the town centre include Boots, W H Smith and Boyes, the latter having recently taken over the former Wilko's store within the St Marks Shopping Precinct. The former M&S building is subject to major redevelopment, including retail units and flats.
1 & 3 Bridge Street, Newark - A landmark property and business originally established in 1893 as G H Porter Provisions, and continuing to provide a delicatessen and smokery with speciality butchers.
Ground floor retail - 389 sq. ft.
Basement preparation and Smokery - 1,115 sq. ft.
Tenants: Jane Westwood & Cathy Britton.
Lease Term: 6 years 11 months from October 2024.
Break Clause: Second anniversary of the lease.
Rent Reviews: Every third anniversary of the lease.
Insurance Rent: Tenant responsible for insurance rent.
Repairs: Tenants responsibility to repair and decorate interior only and to insure plate glass.
Rent: ?12,250 per annum, payable monthly.
5 Bridge Street, Newark - A ground floor retail unit let to a specialist glass engraver.
Gross internal area - 114 sq. ft.
Tenants: Art on Glass.
Lease Term: The tenants are 'Holding Over' under the original terms of an internal repair only lease.
Rent: ?3,600 per annum, payable monthly.
7 Bridge Street, Newark - A business known as Harry's which has traded for many years, and was acquired in 2024, and a new lease was granted.
Gross internal area - 293 sq. ft.
Tenants: Thivakaran Thillainathan.
Lease Commencement Date: May 2024.
Term: 6 years 11 months.
Rent Reviews: Every third anniversary of the lease.
Insurance Rent: Tenant responsible for insurance rent. Tenants responsible for internal repairs and decoration only. Tenant to insure plate glass.
9 Bridge Street, Newark - Let to Timpsons the well known chain of shoe repairs, products and engravings.
The property comprises ground floor retail, first and second floor storage.
Gross internal area:
Ground floor retail - 293 sq. ft.
First floor storage - 127 sq. ft.
Second floor storage - 492 sq. ft.
Tenants: Timpson Limited.
Lease Terms: The Tenants are 'Holding Over' under the terms of the original lease. Tenant responsible for internal repairs and decoration only.
Rent: ?10,500 per annum.
27 Market Place, Newark - The tenants are an established hairdressing business known as Barber Shoppe. The premises are situated on the return frontage to Market Place.
Gross internal area - 625 sq. ft.
Lease Terms: The tenants are 'Holding Over' under the terms within the original lease. Tenants responsible for internal repair and decoration only.
Rent: ?9,000 per annum.
Upper Floors -
27/29 Market Place, Newark - (Former cafe and offices).
1, 3 & 5 Bridge Street, Newark - The upper floors provide vacant rooms suitable for conversion to residential use subject to Planning Permission.
David Dakin Architects Limited have prepared plans with the possibility of obtaining Planning Permission for the change of use of the first and second floors of the building to flats (3 flats on each floor, totalling 6 flats). Access would be provided via the Market Place doorway. Internally, the flats would have kitchen/living/dining areas, one bedroom and a bathroom.
Projected floor areas:
Flat 1 - 57 sq. m (613 sq. ft)
Flat 2 - 46 sq. m (495 sq. ft)
Flat 3 - 54 sq. m (581 sq. ft)
Flat 4 - 60 sq. m (645 sq. ft)
Flat 5 - 42 sq. m (452 sq. ft)
Flat 6 - 56 sq. m (602 sq. ft)
Given the size of the flats they could provide suitable internal space for one bedroom/two person units.
A copy of the proposed floor layout is attached to these particulars.
Town & Country Planning - A Pre-application Advice has been obtained from Newark & Sherwood District Council Planning following a Pre-application enquiry, application reference PREAPP/00227/24.
The Case Senior Planner concluded "Whilst the principal of residential use of the upper floors of this building is likely to be supported, it has not been possible to definitely conclude whether an application of this intensity would be supported given the comments made in relation to the potential impact on the significance on this Grade II* Listed building, internal noise levels, cycle storage and provision for refuge storage.
An application for Full Planning Permission and Listed Buildings Consent would need to be accompanied by full plans, a Planning Statement and Acoustic Impact Assessment.
A copy of the Pre-application enquiry dated 1st October 2024 is available from Richard Watkinson & Partners on request.
Listed Building Status - The property is Grade II* Listed and within the historic core of the town and designated conservation area.
Tenure - The property is freehold and offered for sale subject to existing business tenancies.
Viewing - Strictly by appointment with the selling agents.
Read less